Dự án căn nhà biệt thự 2 tầng của gia đình chú Vũ Xuân Còn tại Thanh Miện, Hải Dương sử dụng công nghệ nhà khung thép tiền chế hiện đại, dự án này không chỉ đáp ứng yêu cầu về kiến trúc sang trọng, bền vững của một siêu biệt thự mà còn tối ưu hóa về thời gian và chi phí thi công.
Công trình này được Nhà Thép Kisato thiết kế và thi công trọn gói với khoảng thời gian lắp dựng khung thép kết cấu chỉ từ 2 – 3 ngày.
Lợi Ích Vượt Trội Của Công Nghệ Khung Thép
Tối Ưu Hóa Tiến Độ (Thời Gian Vàng)
-
Tiết kiệm 30-40% thời gian thi công phần thô so với phương pháp truyền thống. Khung thép được gia công sẵn tại nhà máy, rút ngắn tối đa thời gian lắp dựng tại công trường.
-
Tiến độ thực tế dự án: Hoàn thành lắp dựng khung và bao che chỉ trong 2- 3 ngày.
![]() |
Độ Bền Vững & An Toàn Tuyệt Đối
-
Khả năng chống chịu: Kết cấu thép cường độ cao, được tính toán tải trọng kỹ lưỡng, đảm bảo khả năng chịu lực gió bão và chống động đất tốt hơn hẳn bê tông cốt thép.
-
Hạn chế rủi ro: Giảm thiểu sai sót do con người, toàn bộ quy trình được kiểm soát nghiêm ngặt theo tiêu chuẩn.
3. Giải Pháp Kiến Trúc Hiện Đại
-
Không Gian Mở: Khung thép cho phép tạo ra các khẩu độ lớn, không cần cột cồng kềnh, mang lại sự linh hoạt tối đa trong việc bố trí nội thất, đúng chuẩn phong cách biệt thự hiện đại.
-
Nhẹ Hơn: Giúp giảm tải trọng cho móng, từ đó giảm chi phí móng so với công trình cùng quy mô bằng bê tông truyền thống.
Thông Tin Kỹ Thuật Của Siêu Biệt Thự Khung Thép 2 Tầng Tại Thanh Miện, Hải Dương
Quy mô: 2 tầng
Diện tích: 8,5x14m
Chủ đầu tư: Vũ Xuân Còn
Địa điểm: Hải Dương
Phối Cảnh 3D Chi Tiết Công Trình:
Mặt Bằng Hiện Trạng Thửa Đất Của Chủ Đầu Tư:
Công trình chủ đầu tư muốn xây dựng nằm lui về phía sau và bên trái của thửa đất. Diện tích thửa đất 16,5×18,1m, công trình 2 biệt thự 2 tầng với diện tích 8,5x14m
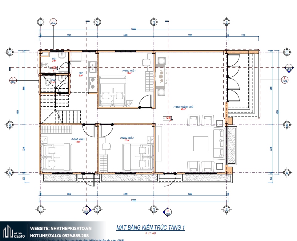
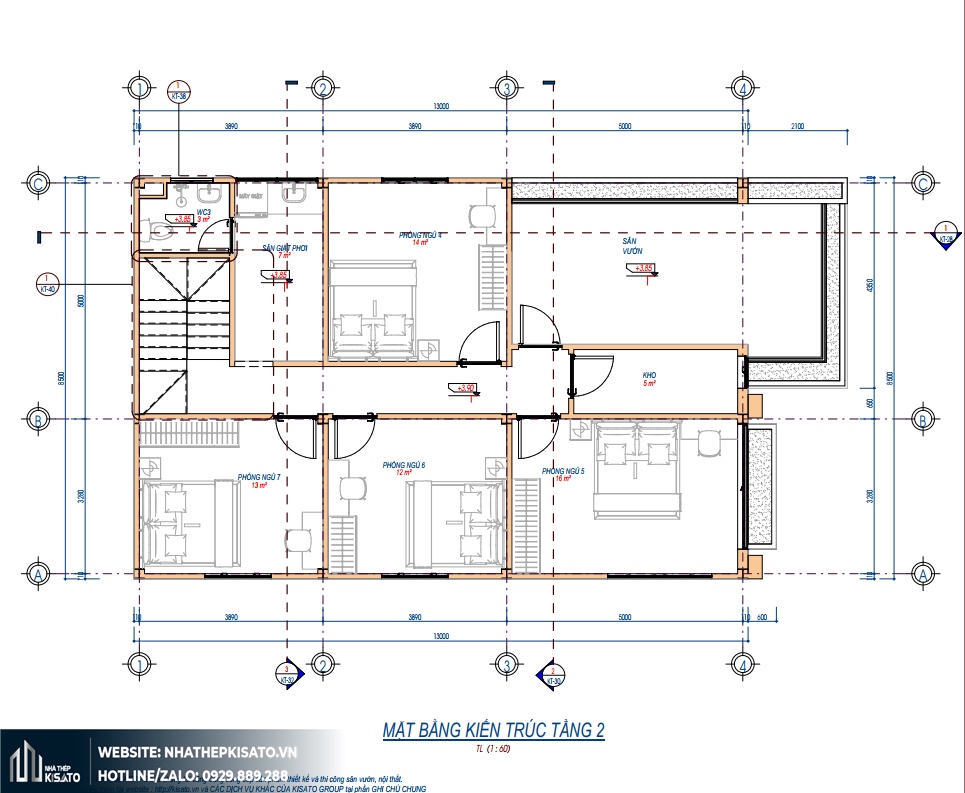
Mặt Bằng Kiến Trúc Tầng 1 và 2:
3D Mặt Bằng Kiến Trúc Tầng 1 và 2:
Công năng công trình bao gồm
Tầng 1: Phòng khách + thờ 40m2, 3 phòng ngủ, bếp 5m2, 2 WC, khu sảnh hiên
Tầng 2: 4 phòng ngủ, nhà vệ sinh, sân giặt phơi, kho, sân vườn
Quá Trình Hình Thành Siêu Biệt Thự 2 Tầng 8,5x14m
Sau khi Nhà Thép Kisato và chủ đầu tư chốt phương án thiết kế, kết cấu, điện nước chi tiết … Một lần nữa chúng tôi nhận được sự tín nhiệm của gia đình để thực hiện thi công trọn gói cho chủ nhà.
Theo kế hoạch, công ty chúng tôi đã có mặt tại nhà chú Còn để thực hiện lễ khởi công dự án siêu hấp dẫn này:
Với thiết kế đột phá, công năng tối ưu kèm theo đó là lợi thế về tốc độ thi công của khung thép thì sau một thời gian công trình đã xong phần thô của tầng 1
Mời các bác xem video tại đây:
Thông tin liên hệ và tư vấn
Công ty chúng tôi chuyên thiết kế và thi công trọn gói trên 34 tỉnh thành, cung cấp các loại vật liệu tận chân nhà máy. Bên cạnh đó chúng tôi còn có những giải pháp giúp ích cho quý khách trong quá trình xây dựng và thi công. Nhà Thép KISATO còn không ngừng nghiên cứu, tìm tòi, áp dụng công nghệ, vật liệu tiên tiến nhất, chất lượng nhất vào thi công nhà để mang đến một không gian sang trọng, tối ưu được toàn diện về cả thẩm mỹ lẫn công năng.
Bạn đang tìm kiếm giải pháp xây dựng nhanh, bền, và tiết kiệm chi phí?
Liên hệ với chúng tôi ngay hôm nay để nhận tư vấn miễn phí về dự án nhà khung thép của riêng bạn!
Hotline: 0929.889.288
