Trong những năm gần đây, xu hướng xây dựng nhà khung thép đang dần trở thành lựa chọn hàng đầu nhờ ưu điểm vượt trội về tốc độ thi công, chi phí tối ưu và độ bền cao. Đặc biệt với những công trình về nhà ở kết hợp kinh doanh thì giải pháp nhà khung thép là 1 lựa chọn không chỉ mang lại hiệu quả kinh tế mà còn đảm bảo tính thẩm mỹ và độ an toàn cho công trình. Trong bài viết hôm nay, Nhà thép KISATO xin giới thiệu đến bạn một mẫu nhà khung thép 2,5 tầng hoàn thiện phần lắp dựng khung chỉ trong 3 ngày. Công trình này thuộc sở hữu của anh Trần Thế Phúc tại Kim Bảng (Hà Nam cũ).
Ưu điểm của nhà 2.5 tầng khung thép mặt tiền 6.5m vừa ở vừa kinh doanh
Tối ưu hoá không gian trưng bày
Diện tích vừa vặn: Mặt tiền 6.5m không quá lớn như nhà phố rộng (trên 8m) nhưng cũng không quá hẹp (dưới 4m). Đây là chiều rộng lý tưởng để thiết kế một cửa hàng có mặt tiền đủ rộng rãi để trưng bày sản phẩm mà vẫn đảm bảo tính thẩm mỹ của tổng thể ngôi nhà.
Ánh sáng và tầm nhìn: Dễ dàng lấy ánh sáng tự nhiên và thu hút tầm nhìn từ đường phố, tạo lợi thế lớn trong việc kinh doanh.
Lợi ích kép từ thiết kế 2.5 tầng
Tối đa hóa công năng: Nhà 2.5 tầng thường bao gồm tầng trệt, tầng lầu và một tầng lửng/tum trên cùng. Điều này giúp tăng thêm đáng kể diện tích sử dụng so với nhà 2 tầng mà không vi phạm quy định chiều cao hoặc tăng quá nhiều chi phí như nhà 3 tầng
Tại sao công trình khung thép có thể hoàn thiện chỉ trong 3 ngày?
- Sản xuất tại nhà máy (Không cần chờ khô):
- Toàn bộ cấu kiện thép (cột, dầm, kèo) cho ngôi nhà 2.5 tầng mặt tiền 6.5m được cắt, khoan, hàn và sơn chống gỉ hoàn chỉnh ngay tại nhà máy.
- Quá trình này được kiểm soát chất lượng nghiêm ngặt và không bị ảnh hưởng bởi thời tiết. Đây là khâu chiếm đến 70-80% thời gian xây dựng.
- Lắp ghép tại công trình (Tối ưu hóa thời gian):
- Khi các cấu kiện được vận chuyển đến công trình, mọi thứ đã sẵn sàng. Công việc tại chỗ chỉ là lắp ghép các cấu kiện bằng bu lông hoặc mối hàn nhanh theo bản vẽ kỹ thuật.
- Với một đội ngũ thợ lành nghề và sự hỗ trợ của cần cẩu nhỏ, việc dựng xong toàn bộ khung xương của một ngôi nhà 2.5 tầng có thể hoàn thành chỉ trong 3 ngày làm việc hiệu quả.
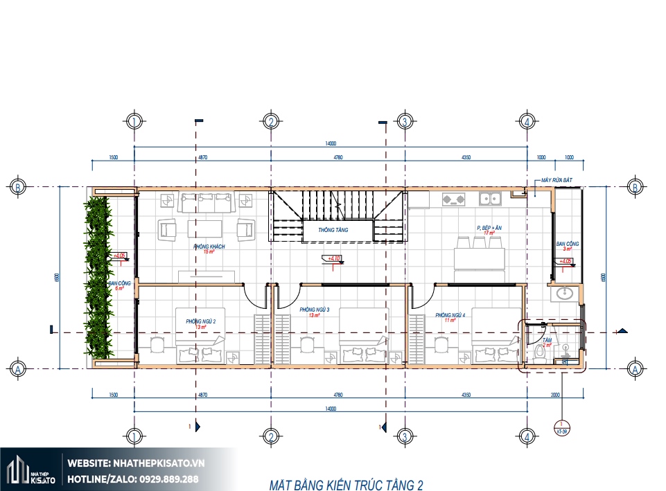
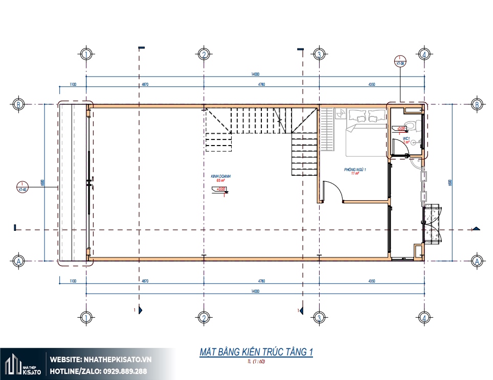
Chi tiết bản vẽ công năng nhà khung thép 2.5 tầng vừa ở vừa kinh doanh
Mặt bằng kiến trúc 2D các tầng: 1; 2; và tum
Bản vẽ 3D kiến trúc các tầng: 1; 2; và tum
Cận cảnh quá trình lắp dựng nhà khung thép 2,5 tầng vừa ở vừa kinh doanh
Lợi ích nhà khung thép mang lại cho công trình nhà ở kết hợp kinh doanh
Việc lựa chọn công nghệ xây dựng khung thép tiền chế cho mô hình kinh doanh kết hợp nhà ở mang lại ba lợi ích tối thượng mà không phương pháp nào sánh được:
- Tốc độ vượt trội
- Tối ưu hoá không gian
- Chi phí và tính linh hoạt
Thông tin liên hệ và tư vấn
- Công ty chúng tôi chuyên thiết kế và thi công trọn gói trên 34 tỉnh thành, cung cấp các loại vật liệu tận chân nhà máy. Bên cạnh đó chúng tôi còn có những giải pháp giúp ích cho quý khách trong quá trình xây dựng và thi công.
- Chúng tôi cam kết sử dụng thép chất lượng cao, đạt tiêu chuẩn kỹ thuật nghiêm ngặt và thi công dưới sự giám sát chặt chẽ của đội ngũ kỹ sư chuyên nghiệp.
- Nhà Thép KISATO còn không ngừng nghiên cứu, tìm tòi, áp dụng công nghệ, vật liệu tiên tiến nhất, chất lượng nhất vào thi công nhà để mang đến một không gian sang trọng, tối ưu được toàn diện về cả thẩm mỹ lẫn công năng.
- Đừng để ý tưởng kinh doanh của bạn bị trì hoãn bởi thời gian xây dựng kéo dài. Đây là thời điểm để biến bản vẽ thành hiện thực.
- Nếu quý khách có nhu cầu tư vấn thiết kế, thi công các công trình nhà thép xin vui lòng liên hệ Hotline: 0929.889.288